تفاصيل تييرا التجمع السادس Tierra New Cairo
مشروع تييرا التجمع السادس Tierra New Cairo هو أحد أحدث المشروعات العقارية الكبرى التي أعلنت عنها الشركة السعودية المصرية للتعمير (Saudi Egyptian Developers – SED)، ليعكس رؤية الشركة في تقديم مجتمعات سكنية متكاملة تجمع بين الرفاهية والهدوء والطبيعة في آنٍ واحد. يأتي هذا المشروع كتحفة معمارية جديدة في منطقة القاهرة الجديدة، وتحديدًا على امتداد شارع التسعين الجنوبي عند بوابة التجمع السادس، ليمنح سكانه موقعًا استراتيجيًا يجمع بين القرب من العاصمة الإدارية الجديدة والحيوية الكاملة التي تشتهر بها منطقة التجمع الخامس.
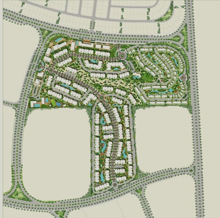
تمتد أرض المشروع على مساحة ضخمة تبلغ 104 فدان، بُني منها فقط 20%، بينما خُصصت النسبة الأكبر للمساحات الخضراء الواسعة، والممرات، والحدائق، والمناطق المفتوحة التي تمنح شعورًا دائمًا بالاتساع والنقاء. هذا التخطيط الفريد يعكس فلسفة المشروع القائمة على الدمج بين الطبيعة والتصميم العصري، ليخلق بيئة سكنية صحية ومتناغمة توفر أعلى درجات الراحة والخصوصية.
ويُقدم كمبوند تييرا التجمع السادس Tierra New Cairo مزيجًا متنوعًا من الوحدات السكنية، تشمل شققًا فاخرة وفيلات بأنواعها المختلفة (مستقلة – توين هاوس – تاون هاوس)، تم تصميمها بأحدث الطرز المعمارية التي تمزج بين البساطة والأناقة. كما يضم المشروع مجموعة من الخدمات والمرافق المتكاملة التي تلبي كافة احتياجات السكان اليومية والترفيهية، ليصبح مجتمعًا راقيًا متكامل الأركان يعكس مفهوم “Your Place on Earth” الذي تتبناه الشركة السعودية في جميع مشروعاتها.
موقع مشروع تييرا التجمع السادس Tierra New Cairo
يمتاز مشروع تييرا التجمع السادس Tierra New Cairo بموقعه الفريد الذي يجمع بين الهدوء والاتصال المباشر بالمناطق الحيوية، فهو يقع على امتداد شارع التسعين الجنوبي في قلب القاهرة الجديدة، ليُعد من أكثر المواقع تميزًا على الإطلاق. هذا الموقع يمنح المشروع قيمة استثمارية عالية، نظرًا لقربه من أهم المحاور والوجهات الخدمية والترفيهية في المدينة.
ويتميز موقع المشروع بالآتي:
- يبعد 10 دقائق فقط عن الجامعة الأمريكية بالقاهرة، مما يجعله مثاليًا للعائلات والطلاب.
- يبعد 15 دقيقة عن الطريق الدائري، ما يوفر سهولة التنقل إلى مختلف أنحاء العاصمة.
- يقع بالقرب من العاصمة الإدارية الجديدة، مما يجعله في قلب الامتداد العمراني الحديث لمصر.
- محاط بأهم الكمبوندات والمشروعات السكنية الراقية مثل ميفيدا ولايف فيو وريهاب.
- سهولة الوصول إلى الطرق والمحاور الرئيسية مثل طريق السويس وطريق العين السخنة.
بهذا الموقع المتميز، يصبح تييرا التجمع السادس Tierra New Cairo الخيار الأمثل لكل من يبحث عن حياة راقية داخل مجتمع متكامل الخدمات، وفي الوقت نفسه على بُعد دقائق من أهم معالم القاهرة الجديدة والعاصمة الإدارية.
مساحة مشروع Tierra New Cairo والتصميم العام
يمتد مشروع تييرا التجمع السادس Tierra New Cairo على مساحة شاسعة تبلغ 104 فدان، تم تخصيص 20% فقط للبناء، بينما تغطي المساحات الخضراء واللاندسكيب والمناطق المفتوحة أكثر من 80% من إجمالي المساحة. هذا التوازن بين المساحات العمرانية والطبيعية يعكس فلسفة المشروع التي تتمحور حول خلق بيئة سكنية هادئة وصحية تجمع بين الخصوصية والاستجمام في قلب القاهرة الجديدة.
صُمم الكمبوند ليكون مجتمعًا متكامل الأركان، حيث تتوزع الوحدات السكنية بين فيلات فاخرة وشقق عصرية وسط مساحات من الحدائق والممرات الطبيعية التي تتيح للسكان ممارسة أنشطتهم اليومية في أجواء من الهدوء والراحة. كما اعتمد التصميم المعماري على الطابع العصري البسيط الذي يدمج بين العناصر المحلية والإلهام الطبيعي، باستخدام خامات وألوان مستوحاة من الأرض، لتقديم هوية بصرية مميزة للمشروع.
ويضم التخطيط العام للمشروع مجموعة من المكونات الرئيسية:
- منطقة الفيلات Tierra Villas بتصميم متدرج يتناغم مع الطبيعة المحيطة.
- منطقة الشقق Tierra Apartments التي تجمع بين الحداثة والراحة.
- ممشى رئيسي ومناطق ترفيهية مفتوحة تربط بين أجزاء المشروع.
- نادي رياضي واجتماعي Clubhouse يقدم تجربة متكاملة للرفاهية والأنشطة.
- مولات تجارية ومسجد ومناطق خدمات لخدمة جميع السكان.
بفضل هذا التصميم المتوازن والبنية التحتية المتطورة، يُعد مشروع Tierra New Cairo نموذجًا للمجتمعات الحديثة التي تُمثل جيلًا جديدًا من المشروعات العقارية في القاهرة الجديدة.
لمعرفة مزيد من المعلومات عن شقق وفيلات للبيع بالتجمع السادس
يرجي التواصل على رقم 01050607550
أنواع الوحدات في تييرا التجمع السادس Tierra New Cairo
يقدم مشروع تييرا التجمع السادس Tierra New Cairo مجموعة متنوعة من الوحدات السكنية التي تلبي احتياجات مختلف الفئات، سواء للعائلات الباحثة عن الفخامة والمساحات الواسعة أو للأفراد الراغبين في امتلاك شقة حديثة ضمن مجتمع متكامل الخدمات. يجمع المشروع بين الفيلات الفاخرة Tierra Villas والشقق الأنيقة Tierra Apartments، ليمنح كل عميل فرصة اختيار ما يناسب أسلوب حياته واستثماره العقاري.
الفيلات Tierra Villas
تتميز فيلات تييرا بتصميماتها الراقية التي تمزج بين الفخامة والخصوصية، حيث تم توزيعها بعناية على التلال والمساحات الخضراء لتوفر إطلالات مفتوحة على الطبيعة.
وتشمل الأنواع التالية:
- فيلا مستقلة SA Villa بمساحة 325 مترًا مكونة من 4 غرف نوم بسعر 21,960,000 جنيه.
- فيلا مستقلة SV Villa بمساحة 264 مترًا مكونة من 3 غرف نوم بسعر 18,480,000 جنيه.
- توين هاوس Twin Villa بمساحة 260 مترًا مكون من 3 غرف نوم بسعر 16,520,000 جنيه.
- تاون هاوس Townhouse بمساحة 265 مترًا مكون من 3 غرف نوم بسعر 14,570,000 جنيه.
كل فيلا مصممة لتعكس مفهوم الحياة الفاخرة في قلب الطبيعة، حيث تضم حدائق خاصة ومساحات معيشة مفتوحة تسمح بدخول الإضاءة الطبيعية وتمنح شعورًا بالاتساع والراحة.
الشقق Tierra Apartments
أما منطقة الشقق في Tierra New Cairo فهي مصممة لتكون مركزًا نابضًا بالحياة داخل الكمبوند، محاطة بالمساحات الخضراء والممرات التي تربطها بالمناطق الخدمية والترفيهية.
وتتوافر الشقق بمساحات متنوعة تناسب جميع الاحتياجات:
- شقة غرفة واحدة بمساحة 89 مترًا بسعر 5,130,000 جنيه.
- شقة غرفتين بمساحة 118 مترًا بسعر 6,500,000 جنيه.
- شقة ثلاث غرف بمساحة 149 مترًا بسعر 8,150,000 جنيه.
تتميز جميع الشقق بتصميم عصري يحقق أقصى استفادة من المساحات، مع تشطيبات راقية وشرفات تطل على مناظر طبيعية خلابة، ما يجعلها خيارًا مثاليًا للسكن أو الاستثمار طويل الأمد.
أنظمة السداد في Tierra New Cairo
قدّمت الشركة السعودية المصرية للتعمير (SED) أنظمة سداد مرنة في مشروع تييرا التجمع السادس Tierra New Cairo لتناسب مختلف فئات العملاء، سواء الراغبين في الاستثمار أو في السكن الفوري. الهدف من هذه الخطط هو تسهيل امتلاك وحدة داخل أحد أكثر المشاريع تميزًا في القاهرة الجديدة دون عبء مالي كبير، مع الحفاظ على جودة المشروع وسمعة المطور.
تتوافر خطتان أساسيتان للسداد داخل الكمبوند:
- الخطة الأولى: دفع مقدم 5% فقط من إجمالي سعر الوحدة، وتقسيط باقي المبلغ على 8 سنوات بأقساط متساوية.
- الخطة الثانية: دفع مقدم 10% من سعر الوحدة، مع إمكانية السداد على 10 سنوات كاملة بدون فوائد.
هذه المرونة في السداد جعلت المشروع من أفضل الخيارات الاستثمارية في القاهرة الجديدة، حيث تجمع بين الأسعار التنافسية التي تميزت بها اسعار مشروع تييرا التجمع السادس، والتقسيط الطويل، والموقع المميز الذي يضمن ارتفاع قيمة الوحدة بمرور الوقت. وبفضل تلك المزايا، أصبح Tierra New Cairo خيارًا مفضلًا لكل من يبحث عن سكن فاخر أو استثمار عقاري مضمون العائد في واحدة من أكثر المناطق الواعدة بالقاهرة الكبرى.
تواصل الآن مع فريق مبيعات مشروع تييرا القاهرة الجديدة على رقم 01050607550
المرافق والخدمات في كمبوند تييرا التجمع السادس Tierra New Cairo
حرصت الشركة السعودية المصرية للتعمير (SED) على أن يكون كمبوند تييرا التجمع السادس Tierra New Cairo مجتمعًا متكامل الخدمات، يجمع بين الراحة، والرفاهية، والحياة العصرية داخل بيئة طبيعية هادئة. فقد تم تصميم المشروع ليُلبي جميع احتياجات السكان اليومية والترفيهية، مع توفير مساحات خضراء واسعة تعزز من جودة الحياة وتجعل من تييرا وجهة مميزة للعيش والاستثمار.
ويضم الكمبوند باقة متكاملة من المرافق والخدمات، من أبرزها:
- نادي اجتماعي ورياضي (Clubhouse) مجهز بأحدث المرافق الرياضية والترفيهية.
- منطقة تجارية ومولات تضم أشهر العلامات التجارية والمطاعم والكافيهات.
- مساحات خضراء وحدائق عامة تغطي أكثر من 80% من المشروع لتوفير أجواء طبيعية صحية.
- ممشى وممرات للمشي والركض تمتد وسط المساحات المزروعة والبحيرات الصناعية.
- مسجد داخل الكمبوند لتوفير الراحة الروحية للسكان.
- منطقة ألعاب أطفال مصممة بأعلى معايير الأمان.
- حمامات سباحة ومناطق استجمام موزعة على أنحاء المشروع.
- نظام أمني متكامل وكاميرات مراقبة تعمل على مدار الساعة لضمان السلامة والخصوصية.
كل عنصر داخل Tierra New Cairo صُمم بعناية ليحقق توازنًا بين الحياة العملية والترفيهية، وليجعل المقيمين يشعرون بأنهم يعيشون في مجتمع راقٍ ينبض بالحياة وسط الطبيعة.
الشركة المطورة لمشروع تييرا Tierra Developer
يقف وراء مشروع تييرا التجمع السادس Tierra New Cairo واحدة من أعرق شركات التطوير العقاري في مصر، وهي الشركة السعودية المصرية للتعمير (Saudi Egyptian Developers – SED)، التي تأسست عام 1975 كشراكة استراتيجية بين الحكومتين السعودية والمصرية. وتعد الشركة من أبرز الكيانات العقارية التي تمتلك سجلًا حافلًا بالمشروعات السكنية المتكاملة، حيث نجحت في تقديم مجتمعات عمرانية متميزة تجمع بين الابتكار، والجودة، والرؤية المستقبلية للتنمية.
خلال مسيرتها الطويلة، قامت الشركة السعودية بتنفيذ وتسليم أكثر من 25,000 وحدة سكنية يعيش بها أكثر من 114,000 فرد في مختلف أنحاء الجمهورية، وتضم محفظتها العقارية أكثر من 50 مشروعًا بارزًا من بينها:
- كمبوند جاردينيا Jayd New Cairo في القاهرة الجديدة.
- مشروع بلو فيرت Bleu Vert New Capital في العاصمة الإدارية الجديدة.
- مشروع نايل بيرل Nile Pearl المطل على كورنيش المعادي.
وتواصل الشركة السعودية المصرية (SED) اليوم تعزيز مكانتها في السوق المصري من خلال إطلاق مشروعات نوعية مثل Tierra New Cairo، الذي يجسّد رؤيتها في بناء مجتمعات عمرانية صديقة للبيئة، قائمة على التصميم الذكي والبنية التحتية المتطورة، لتقدم للسوق منتجًا عقاريًا راقيًا بمواصفات عالمية.
لماذا تستثمر في تييرا التجمع السادس Tierra New Cairo؟
الاستثمار في مشروع تييرا التجمع السادس Tierra New Cairo ليس مجرد اقتناء وحدة سكنية، بل هو قرار استثماري ذكي في واحدة من أكثر المناطق الواعدة في القاهرة الجديدة. المشروع يجمع بين الموقع الاستراتيجي، والتصميم المتميز، وسمعة المطور القوية، مما يجعله فرصة استثمارية حقيقية تزداد قيمتها بمرور الوقت.
ومن أبرز أسباب تجعل Tierra New Cairo وجهة مثالية للسكن والاستثمار:
- موقع فريد على امتداد شارع التسعين الجنوبي، بالقرب من الجامعة الأمريكية والعاصمة الإدارية.
- مشروع متكامل الخدمات يوفر حياة راقية متوازنة بين الرفاهية والطبيعة.
- تنوع الوحدات بين شقق وفيلات لتناسب مختلف الاحتياجات والميزانيات.
- تصميم معماري حديث يجمع بين الأناقة والبساطة ويعزز الشعور بالراحة.
- سمعة المطور العقاري الموثوقة (SED) التي تضمن جودة التنفيذ والالتزام بالمواعيد.
- خطط سداد مرنة تبدأ من مقدم 5% فقط وتقسيط حتى 10 سنوات بدون فوائد.
- ارتفاع متوقع في العائد الاستثماري بفضل الموقع الحيوي والطلب المتزايد على العقارات في القاهرة الجديدة.
كل هذه العوامل تجعل من تييرا التجمع السادس Tierra New Cairo مشروعًا استثماريًا متكامل الأركان، يجمع بين السكن الفاخر والعائد الآمن، ليكون اختيارًا مثاليًا للراغبين في امتلاك وحدة في مشروع راقٍ وواعد ضمن رؤية مستقبلية مستدامة.
الأسئلة الشائعة حول مشروع تييرا التجمع السادس Tierra New Cairo
من هو المطور العقاري لمشروع تييرا التجمع السادس؟
المطور هو الشركة السعودية المصرية للتعمير (Saudi Egyptian Developers – SED)، وهي واحدة من أعرق شركات التطوير العقاري في مصر، ولها سجل حافل بالمشروعات الناجحة مثل Jayd New Cairo وBleu Vert وNile Pearl.
أين يقع مشروع Tierra New Cairo بالتحديد؟
يقع المشروع على امتداد شارع التسعين الجنوبي عند مدخل التجمع السادس، بالقرب من الجامعة الأمريكية والطريق الدائري والعاصمة الإدارية الجديدة.
ما هي مساحة مشروع تييرا التجمع السادس؟
يمتد مشروع الشركة السعودية Tierra على مساحة 104 فدان، تم تخصيص 20% للبناء فقط و80% للمساحات الخضراء واللاندسكيب لضمان بيئة معيشية مريحة وصحية.
ما أنواع الوحدات المتوفرة داخل Tierra New Cairo؟
يضم تييرا القاهرة الجديدة Tierra SED فيلات فاخرة (مستقلة – توين – تاون هاوس) بالإضافة إلى شقق راقية بمساحات متنوعة تبدأ من 89 مترًا حتى 325 مترًا.
ما هي أنظمة السداد في كمبوند تييرا التجمع السادس؟
تقدم الشركة أنظمة مرنة تبدأ بـ مقدم 5% وتقسيط حتى 8 سنوات أو مقدم 10% وتقسيط حتى 10 سنوات بدون فوائد.
لماذا يُعد الاستثمار في تييرا نيو كايرو فرصة مميزة؟
لأن كمبوند تييرا التجمع | Compound Tierra يجمع بين موقع استراتيجي في القاهرة الجديدة، وتصميم معماري عصري، وخدمات متكاملة، إلى جانب الثقة في المطور السعودي المصري وارتفاع العائد الاستثماري المتوقع.
احجز وحدتك الآن في تييرا التجمع السادس Tierra New Cairo
دلوقتي تقدر تمتلك وحدتك في كمبوند تييرا التجمع السادس Tierra New Cairo وتبدأ حياة جديدة تجمع بين الرفاهية، الخصوصية، والطبيعة الهادئة في قلب القاهرة الجديدة. المشروع من تطوير الشركة السعودية المصرية للتعمير (Saudi Egyptian Developers – SED)، والتي تضمن لك جودة تنفيذ عالية، وتسليم في الموعد، وأنظمة سداد مرنة تناسب كل عميل.
استثمر في المستقبل وامتلك شقتك أو فيلتك بمقدم يبدأ من 5% فقط، مع تقسيط يصل إلى 10 سنوات بدون فوائد، واستمتع بحياة متكاملة داخل مجتمع راقٍ يضم كل ما تحتاجه من خدمات ومرافق على بُعد دقائق من أهم معالم العاصمة.
الآن فرصتك الذهبية لحجز وحدة في مشروع Tierra New Cairo قبل ارتفاع الأسعار — تواصل الآن مع فريق المبيعات واحجز وحدتك في مشروع الشركة السعودية الأحدث في التجمع السادس.




